Ziemia w rejonie Larnaca (875829) na sprzedaż

Cena: 250000 € ( 1070000 zł ) Wyświetleń oferty nieruchomości: 869


Powierzchnia: m2


Liczba sypialni:


Liczba łazienek: 0

Oferta nieruchomości

Działka:

Na sprzedaż

Powierzchnia działki:

m2

Powierzchnia nieruchomości:

m2

Pomieszczenia:

dywany

dzwonek do drzwi

podwójne schody

balkon

umeblowanie

otwarta kuchnia

osobna kuchnia

dostęp do wody

basen

brak

grill

garaż

parking kryty

odkryty parking

dostęp do drogi

telewizja satelitarna

dostęp do prądu

dostęp do internetu

linia telefoniczna

klimatyzacja

ilość poziomów

Grunt w Larnaca 875829 na sprzedaż Cypr

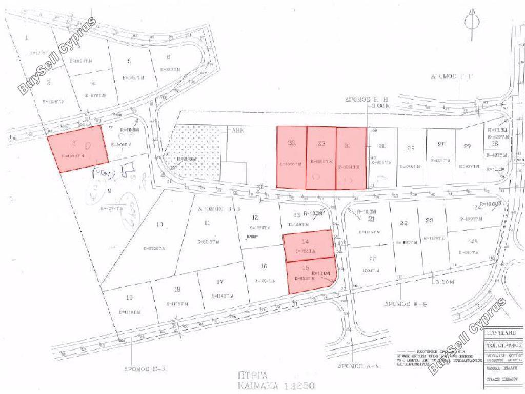
Nieruchomość na sprzedaż to udziały 1989/13424 w podpodziałowym obszarze mieszkaniowym w spokojnej okolicy w gminie Pyrga w dystrykcie Larnaka. Znajduje się 500 metrów na południe od centrum gminy i 2 km na wschód od autostrady Nikozja - Limassol. Pole ma nieregularny kształt i gładką, nachyloną powierzchnię. Przylega również do publicznej drogi rejestrowej wzdłuż wschodniej granicy o pierzei około 120 metrów. Nieruchomość posiada pozwolenie na budowę oraz pozwolenie na wydzielenie 33 działek. Udział odpowiada działkom pod podziałem o nr. 8, 14, 15, 31, 32 i 33. Prace budowlane przy podziale działek są niekompletne. Po zakończeniu podziału powierzchnie działek będą wyglądały następująco: Działka 8 – 1099 τ.μ. (w przybliżeniu) Działka 14 – 765 τ.μ. (w przybliżeniu) Działka 15 – 863 τ.μ. (w przybliżeniu) Działka 31 – 1051 τ.μ. (w przybliżeniu) Działka 32 – 1069 τ.μ. (w przybliżeniu) Działka 33 – 1068 τ.μ. (w przybliżeniu) Należy wspomnieć, że istnieje umowa dystrybucyjna. Nieruchomość uważana jest za doskonałą okazję dla dewelopera gruntu lub osoby prywatnej. Przed złożeniem Oferty należy dokładnie zapoznać się z Warunkami zawartymi w Formularzu Oferty. Wszelkie fotografie, oznaczenia, kontury lub inne wzory na zdjęciach mają charakter wyłącznie orientacyjny i służą wyłącznie do celów ilustracyjnych. Wszystkie szczegóły dotyczące planowania lub inne cechy nieruchomości należy sprawdzić z odpowiednimi władzami. Altamira Asset Management Cyprus Ltd nie jest zobowiązana do przyjęcia najwyższej lub jakiejkolwiek innej złożonej oferty. Powyższa cena może ulec zmianie bez wcześniejszego powiadomienia. Wszystkie informacje otrzymane od Altamira Asset Management Cyprus Ltd (za pośrednictwem strony internetowej i/lub jej operatorów i/lub w inny sposób) mają charakter orientacyjny i nie udziela się żadnej gwarancji co do ich kompletności i/lub ważności. Oferent ponosi wyłączną odpowiedzialność za przeprowadzenie oględzin Nieruchomości oraz za podjęcie wszelkich działań niezbędnych do weryfikacji i/lub zadowolenia z dokładności danych dotyczących Nieruchomości (w tym szczegółów planistycznych, granic m.in.), a ponadto za ustalenie, czy sprzedaż Nieruchomości podlega opodatkowaniu podatkiem VAT i dokładną kwotą do zapłaty. W przypadku braku porozumienia, Oferent ponosi wyłączną odpowiedzialność za przedstawienie odpowiednich dowodów w celu usatysfakcjonowania Altamira Real Estate. Dzielnica: Larnaka Gmina: Pyrga
Działka: 53696 mkw
Strefa

Lokalizacja

Podobne

Ziemia w rejonie Larnaca (847971) na sprzedaż

Ziemia w rejonie Larnaca (847971) na sprzedaż

Oferta sprzedaży
Rejon Cypru: Larnaca
Miejscowość: 847971
Metraż nieruchomości m2, Metraż działki m2,
Ilość sypialni : ,Wiadomość :
Cena : 130000 euro ( 553800 złotych )
Ziemia w rejonie Larnaca (Maroni) na sprzedaż

Ziemia w rejonie Larnaca (Maroni) na sprzedaż

Oferta sprzedaży
Rejon Cypru: Larnaca
Miejscowość: Maroni
Metraż nieruchomości m2, Metraż działki m2,
Ilość sypialni : ,Wiadomość :
Cena : 3100000 euro ( 13206000 złotych )
Ziemia w rejonie Larnaca (859429) na sprzedaż

Ziemia w rejonie Larnaca (859429) na sprzedaż

Oferta sprzedaży
Rejon Cypru: Larnaca
Miejscowość: 859429
Metraż nieruchomości m2, Metraż działki m2,
Ilość sypialni : ,Wiadomość :
Cena : 509000 euro ( 2168340 złotych )
Ziemia w rejonie Larnaca (Dhekelia) na sprzedaż

Ziemia w rejonie Larnaca (Dhekelia) na sprzedaż

Oferta sprzedaży
Rejon Cypru: Larnaca
Miejscowość: Dhekelia
Metraż nieruchomości 0 m2, Metraż działki 694 m2,
Ilość sypialni : ,Wiadomość : 0
Cena : 300000 euro ( 1278000 złotych )
Ziemia w rejonie Larnaca (City centre) na sprzedaż

Ziemia w rejonie Larnaca (City centre) na sprzedaż

Oferta sprzedaży
Rejon Cypru: Larnaca
Miejscowość: City centre
Metraż nieruchomości 0 m2, Metraż działki 393 m2,
Ilość sypialni : ,Wiadomość : 0
Cena : 1000000 euro ( 4260000 złotych )
Ziemia w rejonie Larnaca (890718) na sprzedaż

Ziemia w rejonie Larnaca (890718) na sprzedaż

Oferta sprzedaży
Rejon Cypru: Larnaca
Miejscowość: 890718
Metraż nieruchomości m2, Metraż działki m2,
Ilość sypialni : ,Wiadomość :
Cena : 66000 euro ( 281160 złotych )
Ziemia w rejonie Larnaca (853196) na sprzedaż

Ziemia w rejonie Larnaca (853196) na sprzedaż

Oferta sprzedaży
Rejon Cypru: Larnaca
Miejscowość: 853196
Metraż nieruchomości m2, Metraż działki m2,
Ilość sypialni : ,Wiadomość :
Cena : 93000 euro ( 396180 złotych )
Ziemia w rejonie Larnaca (Dhekelia) na sprzedaż

Ziemia w rejonie Larnaca (Dhekelia) na sprzedaż

Oferta sprzedaży
Rejon Cypru: Larnaca
Miejscowość: Dhekelia
Metraż nieruchomości 0 m2, Metraż działki 4 m2,
Ilość sypialni : ,Wiadomość : 0
Cena : 2000000 euro ( 8520000 złotych )
Ziemia w rejonie Larnaca (822908) na sprzedaż

Ziemia w rejonie Larnaca (822908) na sprzedaż

Oferta sprzedaży
Rejon Cypru: Larnaca
Miejscowość: 822908
Metraż nieruchomości m2, Metraż działki m2,
Ilość sypialni : ,Wiadomość :
Cena : 291000 euro ( 1239660 złotych )

Kontakt

=

Wyszukiwarka

Region

Lokalizacja

Rodzaj nieruchmości

Cena minimalna

Maksymalna cena

Nieruchomości

Apartament Ayia Napa
Apartament Protaras
Apartament Famagusta
Apartament Larnaka
Apartament Paphos
Apartament Limassol
Apartament Nikozja

Dom Ayia Napa
Dom Protaras
Dom Famagusta
Dom Larnaka
Dom Paphos
Dom Limassol
Dom Nikozja

Willa Ayia Napa
Willa Protaras
Willa Famagusta
Willa Larnaka
Willa Paphos
Willa Limassol
Willa Nikozja

Poznaj Cypr z nami!


Wirtualne zwiedzanie Cypru 360


Nasze filmy z Cypru