w rejonie Paphos (Konia) na sprzedaż

Cena: 430000 € ( 1840400 zł ) Wyświetleń oferty nieruchomości: 1258


Powierzchnia: m2


Liczba sypialni: 3


Liczba łazienek: 3

Oferta nieruchomości

Działka:

Na sprzedaż

Powierzchnia działki:

m2

Powierzchnia nieruchomości:

m2

Pomieszczenia:

3 łazienki, 3 sypialnie,

dywany

dzwonek do drzwi

podwójne schody

balkon

umeblowanie

otwarta kuchnia

osobna kuchnia

dostęp do wody

basen

brak

grill

garaż

parking kryty

odkryty parking

dostęp do drogi

telewizja satelitarna

dostęp do prądu

dostęp do internetu

linia telefoniczna

klimatyzacja

ilość poziomów

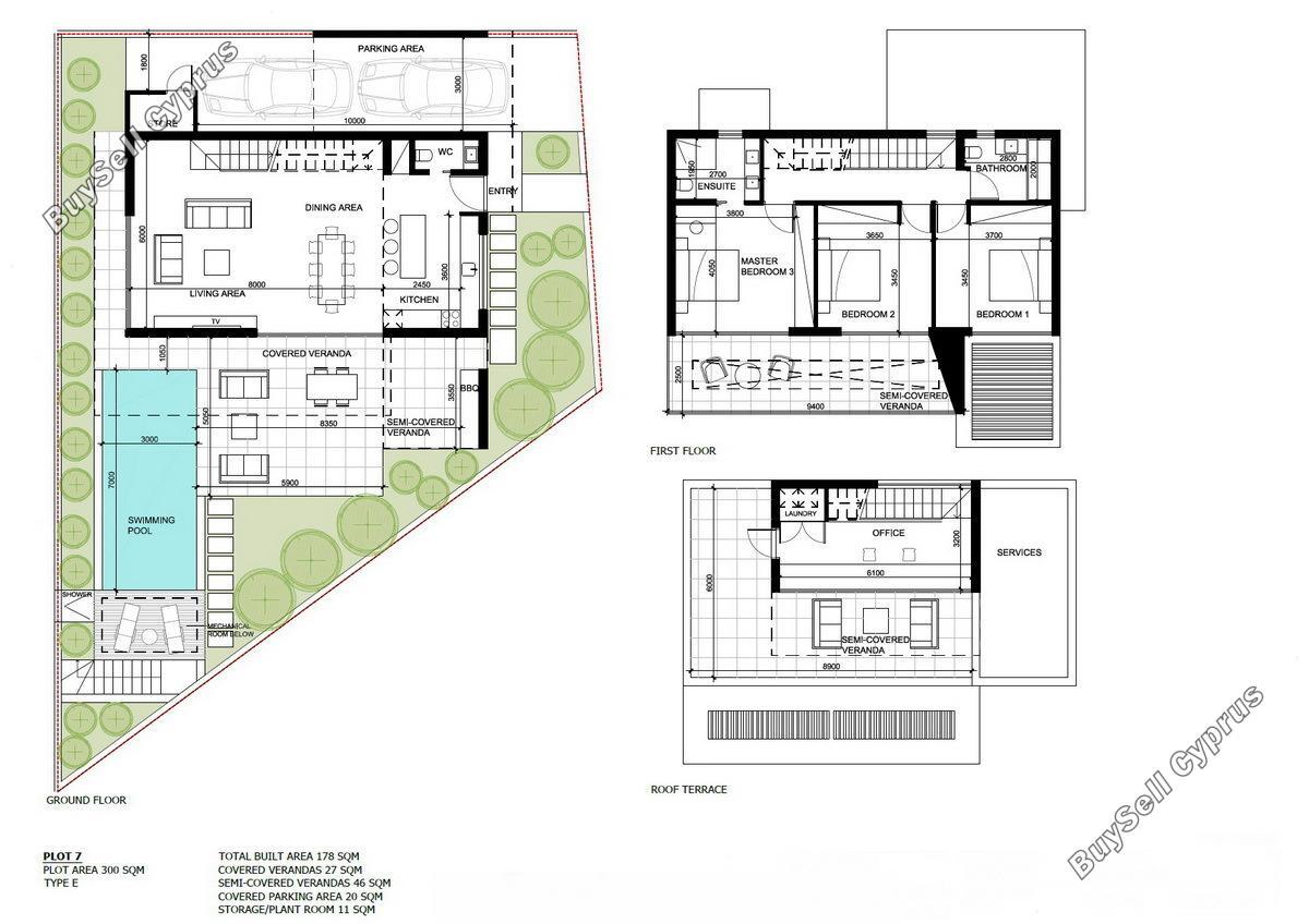
Dom wolnostojący w Pafos Konia na sprzedaż Cypr

Dziewięć luksusowych willi o nowoczesnym wystroju.

Zlokalizowany w Koni, doskonałej i popularnej okolicy ze względu na równowagę kulturową i dogodną lokalizację, w pobliżu międzynarodowej szkoły, sklepów, autostrady oraz w niewielkiej odległości od morza i obszaru turystycznego.

Nieruchomości są nowoczesne i przestronne, z panoramicznym widokiem na morze z ogrodu na dachu.

Każda willa posiada 3 sypialnie, 3 łazienki oraz w pełni wyposażoną kuchnię, szafy, jednostki podtynkowe VRV do chłodzenia i ogrzewania podłogowego.

Pakiet Basen i Meble są opcjonalne.
Sypialnie: 3
Łazienki: 3
Całkowita powierzchnia zadaszona: 182 mkw
Werandy: 23 mkw
Działka: 300 mkw
Prywatny basen
Nowo zbudowany
Klimatyzacja
Centralne ogrzewanie
Blisko udogodnień
Podwójne szyby
Pokój z łazienką
W pełni wyposażona kuchnia
Widoki na góry
Ciśnieniowy system wodny
Weranda
Ogrzewanie podłogowe,
VRV do chłodzenia
System alarmowy

Lokalizacja

Podobne

Willa w rejonie Paphos (Konia) na sprzedaż

Willa w rejonie Paphos (Konia) na sprzedaż

Oferta sprzedaży
Rejon Cypru: Paphos
Miejscowość: Konia
Metraż nieruchomości 178 m2, Metraż działki 366 m2,
Ilość sypialni : 3,Wiadomość : 3
Cena : 226400 euro ( 964464 złotych )
 w rejonie Paphos (Konia) na sprzedaż

w rejonie Paphos (Konia) na sprzedaż

Oferta sprzedaży
Rejon Cypru: Paphos
Miejscowość: Konia
Metraż nieruchomości 722 m2, Metraż działki 0 m2,
Ilość sypialni : 20,Wiadomość : 16
Cena : 2399342 euro ( 10221196.92 złotych )
Willa w rejonie Paphos (Konia) na sprzedaż

Willa w rejonie Paphos (Konia) na sprzedaż

Oferta sprzedaży
Rejon Cypru: Paphos
Miejscowość: Konia
Metraż nieruchomości 197 m2, Metraż działki 229 m2,
Ilość sypialni : 3,Wiadomość : 2
Cena : 381500 euro ( 1625190 złotych )
 w rejonie Paphos (Konia) na sprzedaż

w rejonie Paphos (Konia) na sprzedaż

Oferta sprzedaży
Rejon Cypru: Paphos
Miejscowość: Konia
Metraż nieruchomości 123 m2, Metraż działki 0 m2,
Ilość sypialni : 2,Wiadomość : 2
Cena : 135000 euro ( 575100 złotych )
Willa w rejonie Paphos (Konia) na sprzedaż

Willa w rejonie Paphos (Konia) na sprzedaż

Oferta sprzedaży
Rejon Cypru: Paphos
Miejscowość: Konia
Metraż nieruchomości 216 m2, Metraż działki 686 m2,
Ilość sypialni : 3,Wiadomość : 3
Cena : 589000 euro ( 2509140 złotych )
Willa w rejonie Paphos (Konia) na sprzedaż

Willa w rejonie Paphos (Konia) na sprzedaż

Oferta sprzedaży
Rejon Cypru: Paphos
Miejscowość: Konia
Metraż nieruchomości 178 m2, Metraż działki 320 m2,
Ilość sypialni : 3,Wiadomość : 3
Cena : 325000 euro ( 1384500 złotych )
Willa w rejonie Paphos (Konia) na sprzedaż

Willa w rejonie Paphos (Konia) na sprzedaż

Oferta sprzedaży
Rejon Cypru: Paphos
Miejscowość: Konia
Metraż nieruchomości 140 m2, Metraż działki 256 m2,
Ilość sypialni : 3,Wiadomość : 2
Cena : 373500 euro ( 1591110 złotych )
Willa w rejonie Paphos (Konia) na sprzedaż

Willa w rejonie Paphos (Konia) na sprzedaż

Oferta sprzedaży
Rejon Cypru: Paphos
Miejscowość: Konia
Metraż nieruchomości 535 m2, Metraż działki 1 m2,
Ilość sypialni : 4,Wiadomość : 7
Cena : 2000000 euro ( 8520000 złotych )
Dom typu Bungalow w rejonie Paphos (Konia) na sprzedaż

Dom typu Bungalow w rejonie Paphos (Konia) na sprzedaż

Oferta sprzedaży
Rejon Cypru: Paphos
Miejscowość: Konia
Metraż nieruchomości 0 m2, Metraż działki 265 m2,
Ilość sypialni : 3,Wiadomość : 2
Cena : 0 euro ( 0 złotych )

Kontakt

=

Wyszukiwarka

Region

Lokalizacja

Rodzaj nieruchmości

Cena minimalna

Maksymalna cena

Nieruchomości

Apartament Ayia Napa
Apartament Protaras
Apartament Famagusta
Apartament Larnaka
Apartament Paphos
Apartament Limassol
Apartament Nikozja

Dom Ayia Napa
Dom Protaras
Dom Famagusta
Dom Larnaka
Dom Paphos
Dom Limassol
Dom Nikozja

Willa Ayia Napa
Willa Protaras
Willa Famagusta
Willa Larnaka
Willa Paphos
Willa Limassol
Willa Nikozja

Poznaj Cypr z nami!


Wirtualne zwiedzanie Cypru 360


Nasze filmy z Cypru