Dom w rejonie Famagusta (Liopetri) na sprzedaż

Cena: 156000 € ( 667680 zł ) Wyświetleń oferty nieruchomości: 2365


Powierzchnia: m2


Liczba sypialni: 2


Liczba łazienek: 1

Oferta nieruchomości

Działka:

Na sprzedaż

Powierzchnia działki:

m2

Powierzchnia nieruchomości:

m2

Pomieszczenia:

łazienka, 2 sypialnie,

dywany

dzwonek do drzwi

podwójne schody

balkon

umeblowanie

otwarta kuchnia

osobna kuchnia

dostęp do wody

basen

brak

grill

garaż

parking kryty

odkryty parking

dostęp do drogi

telewizja satelitarna

dostęp do prądu

dostęp do internetu

linia telefoniczna

klimatyzacja

ilość poziomów

Dom w Famagusta Liopetri na sprzedaż Cypr

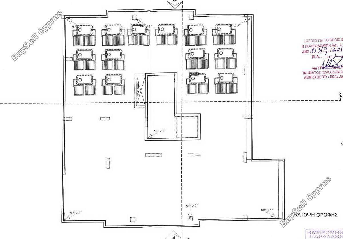
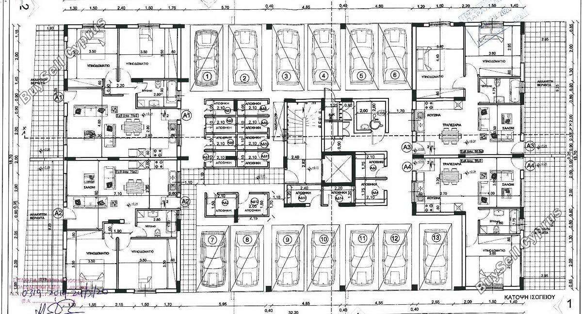
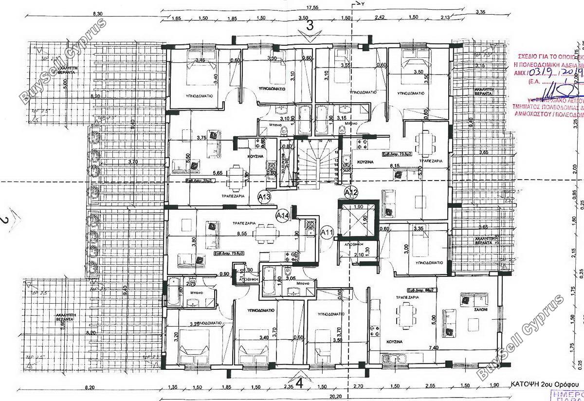
Apartamenty Liopetri to piękny, innowacyjny budynek o wyjątkowym charakterze składający się z zaledwie 14 wyjątkowych przestronnych apartamentów. Ta oszałamiająca nowa inwestycja została stworzona dla tych, którzy chcą połączyć nowoczesny styl życia w cichej i bezpiecznej okolicy. Elegancki design i funkcjonalny układ zapewniają wyjątkowy komfort i luksus. Specyficzny narożny apartament typu penthouse na sprzedaż składa się z salonu/jadalni na otwartym planie, dobrze wydzielonej kuchni i dwóch sypialni o podwójnym rozmiarze. W mieszkaniu znajduje się również rodzinna łazienka i prywatne pomieszczenie gospodarcze. Duże drzwi przesuwne sięgające od podłogi do sufitu z części dziennej/jadalnej

Lokalizacja

Podobne

Dom w rejonie Famagusta (Xylophagou) na sprzedaż

Dom w rejonie Famagusta (Xylophagou) na sprzedaż

Oferta sprzedaży
Rejon Cypru: Famagusta
Miejscowość: Xylophagou
Metraż nieruchomości m2, Metraż działki m2,
Ilość sypialni : 2,Wiadomość : 1
Cena : 69000 euro ( 293940 złotych )
Dom w rejonie Famagusta (Paralimni) na sprzedaż

Dom w rejonie Famagusta (Paralimni) na sprzedaż

Oferta sprzedaży
Rejon Cypru: Famagusta
Miejscowość: Paralimni
Metraż nieruchomości m2, Metraż działki m2,
Ilość sypialni : 2,Wiadomość : 2
Cena : 225000 euro ( 958500 złotych )
Dom w rejonie Famagusta (Protaras) na sprzedaż

Dom w rejonie Famagusta (Protaras) na sprzedaż

Oferta sprzedaży
Rejon Cypru: Famagusta
Miejscowość: Protaras
Metraż nieruchomości m2, Metraż działki m2,
Ilość sypialni : 1,Wiadomość : 1
Cena : 184950 euro ( 787887 złotych )
Dom w rejonie Famagusta (Kapparis) na sprzedaż

Dom w rejonie Famagusta (Kapparis) na sprzedaż

Oferta sprzedaży
Rejon Cypru: Famagusta
Miejscowość: Kapparis
Metraż nieruchomości m2, Metraż działki m2,
Ilość sypialni : 2,Wiadomość : 2
Cena : 250000 euro ( 1065000 złotych )
Dom w rejonie Famagusta (Paralimni) na sprzedaż

Dom w rejonie Famagusta (Paralimni) na sprzedaż

Oferta sprzedaży
Rejon Cypru: Famagusta
Miejscowość: Paralimni
Metraż nieruchomości m2, Metraż działki m2,
Ilość sypialni : 2,Wiadomość : 2
Cena : 184000 euro ( 783840 złotych )
Dom w rejonie Famagusta (Avgorou) na sprzedaż

Dom w rejonie Famagusta (Avgorou) na sprzedaż

Oferta sprzedaży
Rejon Cypru: Famagusta
Miejscowość: Avgorou
Metraż nieruchomości m2, Metraż działki m2,
Ilość sypialni : 2,Wiadomość : 1
Cena : 119000 euro ( 506940 złotych )
Dom w rejonie Famagusta (Deryneia) na sprzedaż

Dom w rejonie Famagusta (Deryneia) na sprzedaż

Oferta sprzedaży
Rejon Cypru: Famagusta
Miejscowość: Deryneia
Metraż nieruchomości m2, Metraż działki m2,
Ilość sypialni : 3,Wiadomość : 2
Cena : 220000 euro ( 937200 złotych )
Dom w rejonie Famagusta (Kapparis) na sprzedaż

Dom w rejonie Famagusta (Kapparis) na sprzedaż

Oferta sprzedaży
Rejon Cypru: Famagusta
Miejscowość: Kapparis
Metraż nieruchomości m2, Metraż działki m2,
Ilość sypialni : ,Wiadomość : 1
Cena : 155000 euro ( 660300 złotych )
Dom w rejonie Famagusta (Kapparis) na sprzedaż

Dom w rejonie Famagusta (Kapparis) na sprzedaż

Oferta sprzedaży
Rejon Cypru: Famagusta
Miejscowość: Kapparis
Metraż nieruchomości m2, Metraż działki m2,
Ilość sypialni : 2,Wiadomość : 1
Cena : 129000 euro ( 549540 złotych )

Kontakt

=

Wyszukiwarka

Region

Lokalizacja

Rodzaj nieruchmości

Cena minimalna

Maksymalna cena

Nieruchomości

Apartament Ayia Napa
Apartament Protaras
Apartament Famagusta
Apartament Larnaka
Apartament Paphos
Apartament Limassol
Apartament Nikozja

Dom Ayia Napa
Dom Protaras
Dom Famagusta
Dom Larnaka
Dom Paphos
Dom Limassol
Dom Nikozja

Willa Ayia Napa
Willa Protaras
Willa Famagusta
Willa Larnaka
Willa Paphos
Willa Limassol
Willa Nikozja

Poznaj Cypr z nami!


Wirtualne zwiedzanie Cypru 360


Nasze filmy z Cypru